選單
MENU
預約
APPOINTMENT


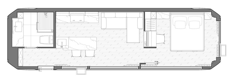
V9首次配置了櫥櫃加餐廚島台的功能,2.3米的超長櫥櫃及島台空間充分滿足了海外客戶對高品質餐廚的需求,冰箱、洗碗機、抽油煙機各類廚房電器一應俱全。起居室也提供了2.4公尺寬的貴妃沙發空間,嵌入式模擬壁爐更是將休閒愜意的度假氛圍烘托到了頂點。
V9的豪華主臥配備了最新的床頭系統(集成氛圍燈、床頭軟包靠背、雙側懸浮床頭櫃、雙側床頭便捷閱讀燈及開關插座)以及全封閉的衣櫃並巧妙融入了一個嵌入式的梳妝台。有別於以往V系列產品的低端定位,V9室內按E系列高端定位標配空調風管機,全鋁天花飾面,雙層天花氛圍燈照明。
V9的乾濕分離浴室配備了更舒適的衛浴分區(智慧衛浴鏡、電熱毛巾架、超大洗手台、洗衣機)。